Verkauft !!! bitte keine Anfragen mehr.
Alte Weingartenerstraße in Karlsruhe-Durlach
Alte Weingartenerstr. 22, 76227 Karlsruhe-DurlachDurlach hat ca. 31.000 Einwohner,ist ein eigenständiger Stadtteil und wird erstmals 1196 urkundlich erwähnt. Heute, nach aufwändiger Sanierung des Stadtkerns und wegen der günstigen Lage zwischen der Metropole Karlsruhe und dem nördlichen Schwarzwald ist Durlach ein gesuchter Standort für Wohnen und Arbeiten.
Das wunderschönes Gründerzeithaus / Eckgebäude, wurde im Verlauf der Jahre 2005/2006 sorgfältig saniert . Das gesamte Dach wurde erneuert, alle wasserführenden Steigleitungen und Gassteigleitungen, sowie die Stromleitungen. Das Treppenhaus und der Hof wurden Mitte August 06 fertiggestellt. Somit wurde das gesamte Gemeinschaftseigentum saniert.
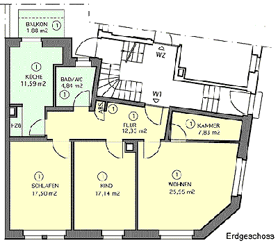
3-Zimmer Wohnung, EG.
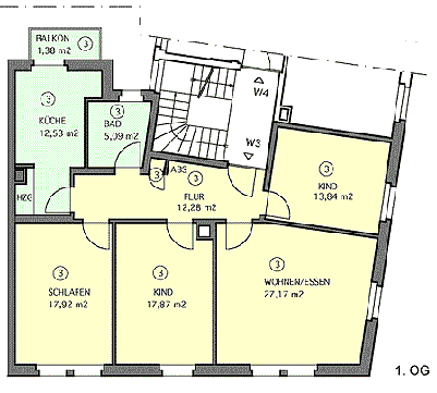
4-Zimmer Wohnung, 1. OG,
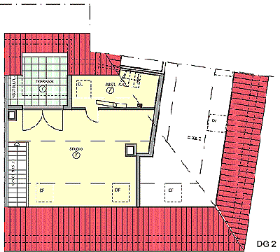
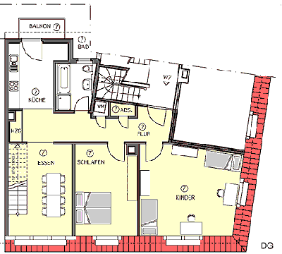
5-Zimmer Maisonettewohnung, DG.
Lage:
| Beispiele für die Infrastruktur | ||
| In Umkreis bis 500 m gibt es: | IIm Umkreis bis 1 km gibt es: | Im Umkreis bis 1,5 km gibt es: |
| Bäckerei Lebensmittelladen Metugerei Kindergarten Gymnasium Straßenbahnhaltestelle | Post Realschule | Grund- ind Hauptschule |
3-Zimmer Wohnung mit Balkon
| Größe | ca. 99 qm |
| Etage: | Erdgeschoss |
| Preis: | auf Anfrage |
Die Wohnung ist im Moment besonders für Kapitalanleger interessant, da sie vermietet ist. Sie hat eine Nachtspeicherheizungen , Holzdielen oder Holzparkettböden und Sanitäreinrichtungen aus den 80er Jahren.
4-Zimmer Wohnung mit Balkon 
| Größe: | ca. 108 qm |
| Etage: | 1. Obergeschoß |
| Preis: | 169.000.-€ |
Die Wohnung ist im Moment besonders für Kapitalanleger interessant, da sie vermietet ist. Die Wohnung selbst hat Gaseinzelöfen , Holzdielen oder Holzparkettböden und Sanitäreinrichtungen aus den 80er Jahren.
5-Zimmer Maisonettewohnung mit Balkon und Dachterrasse
| Größe: | ca. 141 qm |
| Etage: | Dachgeschoß |
| Preis: | 215.000.-€ |
Die Wohnung ist im Moment besonders für Kapitalanleger interessant, da sie vermietet ist. Der Dachboden muß noch ausgebaut werden.Die Dachterrasse ist technisch vorbereitet und behördlich genemigt.
